Kapri
5020 €
5400 €
5400 €
Cena (ar PVN):
5020 €
5400 €
5400 €
Tehniskā informācija
Sienu biezums (mm):
40mm
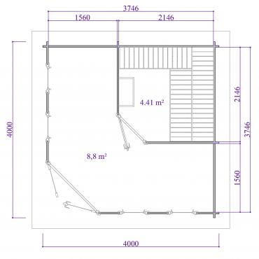
Iekšējā platība (m²):
13.21
Stāvu skaits:
1
Jumta forma:
Četrslīpju
Mājas forma:
Piecstūra
Telpu skaits:
Divas
Iekšējais izmērs (m):
3.746 x 3.746
Ārējais izmērs (m):
3.826 x 3.826
Apbūves platība (m²):
14.64
Jumta platība (m²):
21.90
Jumta pārkare priekšā (m):
0,30
Zemākās sienas augstums (m):
2.18
Kores augstums (m):
3.22
Logu skaits (gab.):
4
Loga izmērs (m):
0.63 x 1.87
Ārdurvju izmērs (m):
1.56 x 1.87
Iekšdurvju izmērs (m):
0.81 x 1.87
Komplektācijā iekļauts
- Jumts no 19mm spundētiem dēļiem;
- Grīda no 28mm bieziem spundēdiem dēļiem;
- Siltināts saunas jumts;
- Stikla pakešu logi un durvis koka rāmjos;
- Līmēta koka durvis;
- Stiklotas līmēta koka saunas durvis;
- Trīspakāpju apses koka saunas soli ar atzveltnēm mugurai;
- Apses koka galvas paliktņi - 2.gab.;
- Masīvkoka krāsns aizsargs;
- Impregnētas pamatu brusas;
- Nerūsējošā tērauda slieksnis;
- Montāžas instrukcija.
Papildus faili
Papildus iespējas
Montāža, piegāde
Par papildus samaksu nodrošinām mūsu produkcijas piegādi, montāžu, kā arī citu papildus darbu veikšanu saskaņā ar vienošanos (pamati, komunikāciju tīkli, siltināšana, krāsošana u.c.)
Individuāli projekti
Bez sarežģījumiem izgatavojam arī individuālu projektu mājas saskaņā ar Jūsu skicēm, rasējumiem, idejām!
Saskaņošana būvvaldē
Par nelielu papildus samaksu nodrošinām mūsu māju projektu vienkāršoto saskaņošanu būvvaldēs 1.grupas ēkām, kā arī veicam pilna cikla projektēšanas darbus 2.grupas ēkām
Saņemt informāciju
Nosūtot šo ziņu, jums tiks sagatavots piedāvājums par produktu: Kapri