Tulona

9800
10660 €

Цена (с НДС): 9800
10660 €

СКИДКА
СКИДКА
СКИДКА
СКИДКА

Описание

caret-down
  • Возможна перепланировка в соответствии с Вашими пожеланиями;
  • Изготавливаем индивидульные проекты без дополнительной платы;
  • За дополнительную плату возможны более толстые стены (90мм, 135мм и другие);
  • За дополнительную плату возможно утепление пола, крыши и стен.

В комплектацию включено

caret-down
  • Стены дома из профилированного бруса 68 мм (ель);
  • Пропитанные фундаментные брусья;
  • Доски крыши толщиной 19 мм, ветровые доски;
  • Доски пола толщиной 28 мм, плинтусы;
  • Окна и двери со стеклопакетами в деревянных рамах;
  • Уплотнители окон и дверей;
  • Окна с металлическими наружными подоконниками;
  • Oкна открываются в двух позициях;
  • Окна и двери с полным комплектом фурнитуры;
  • Инструкция по сборке.

Техническая информация

caret-down
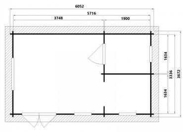
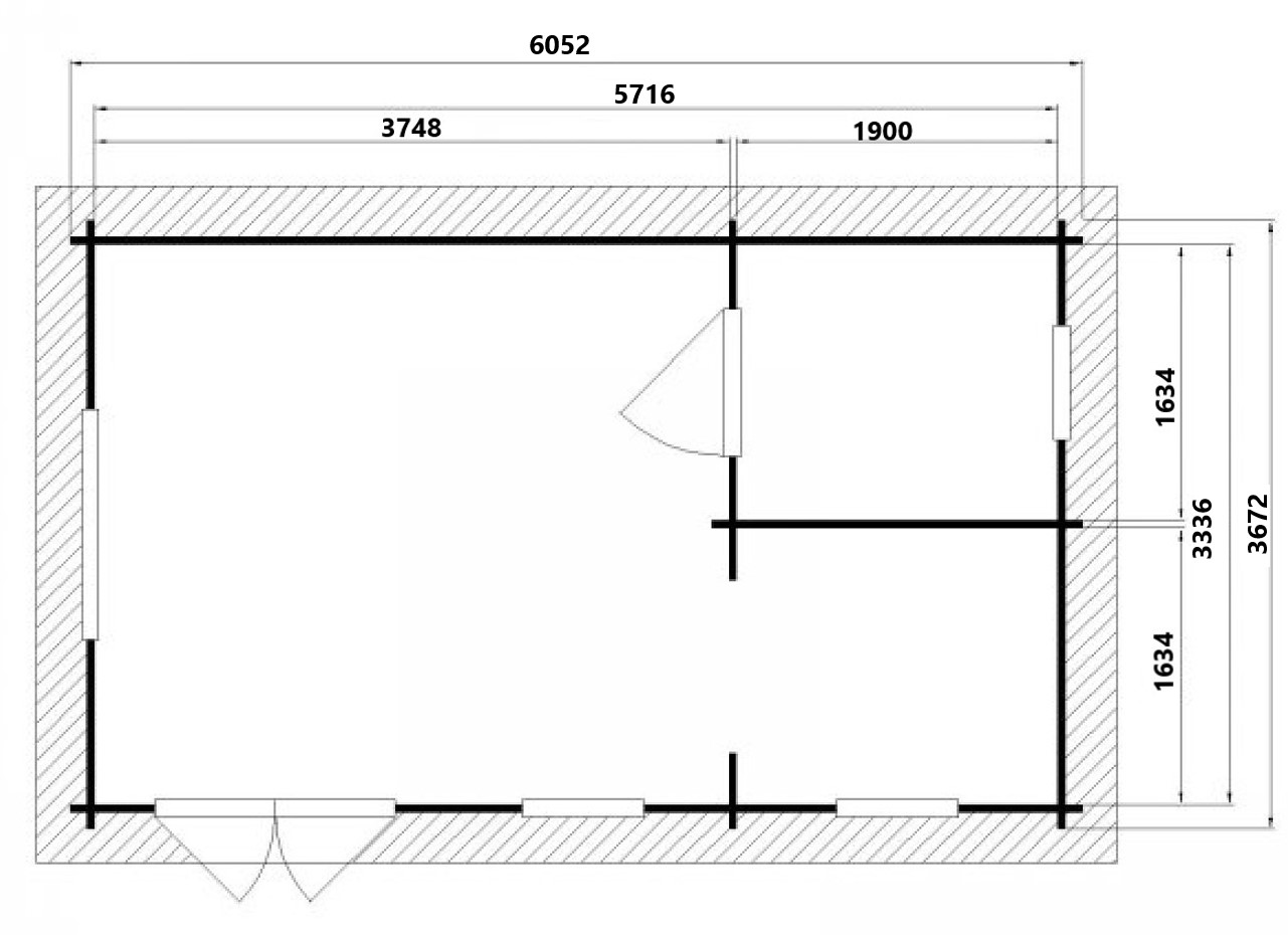
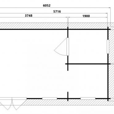
Толщина стен (мм):
68мм
Внутренняя площадь (м²):
18.85
Число этажей:
1
Форма крыши:
Двухскатная
Количество помещений:
Три
Внутренний размер (м):
5.716 x 3.336
Внешний размер (м):
5.852 x 3.472
Площадь застроики (м²):
20.32
Высота нижней стены (м):
2.25
Высота в коньке (м):
2.84
Количество окон (шт.):
4
Размер окна (м):
1.35 x 0.91 / 0.72 x 0.91
Размер внешней двери (м):
1.41 x2.08
Размер внутренней двери (м):
0.78 x 1.95


Дополнительные возможности
Монтаж, доставка
За дополнительную плату обеспечиваем доставку нашей продукции, монтажные работы, а также проведение других строительных работ по соглашению (фундамент, коммуникации, покраска, утепление и другие).
Индивидуальные проекты
Без сложностей производим дома индивидуальных проектов согласно Вашем эскизам, чертежам, идеям.
Получение разрешения на строительство
За небольшую плату обеспечиваем получение разрешения на строительство домам 1.группы, а также предлогаем услиги проектирования домов 2.группы.
Получить информацию
Отправь это сообщение Вам будет подготовлено предложение по продукту: Tulona

Tulona

9800
10660 €